プラム1100 OS(事務所・離れ・店舗)
本体価格(税別):
828万円
輸送費、諸経費は別途
プラム
500万円以上
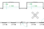
車体幅:2.7m
躯体長:1100cm
ショップやオフィスなどにも最適な雰囲気を演出しております。また、輸送コストを大幅に削減できた上に設置した後はワイドな空間をご利用いただけるチップアウトを標準で2つ装備しております。
※写真にはオプション装備も含まれる場合がございます。
| 仕様 | |
|---|---|
| 外 観 | ガルバニウム鋼板 |
| 屋 根 | 切り妻、ガルバニウム鋼板 |
| 壁・窓 | 断熱材(グラスウール系100mm)・ペアガラス・網戸付き |
| 装 備 | トイレ(ウォッシュレット付き)、ミニキッチン(シンクのみ)、チップアウトx2、仕切り壁、エントランスドア(親子ドア)、窓(格子入り)、土足対応フロア仕上げ ※各コンセント、照明、クロス仕上げ済み |














