【中古車】フィールド600
200万円台
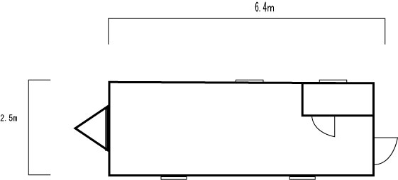
車体幅:2.5m
躯体長:740cm
トイレとして利用できる個室有り。

| 仕様 | |
|---|---|
| 外 観 | ガルバリウム鋼板 |
| 屋 根 | パラペット・ガルバリウム鋼板 |
| 壁・窓 | 断熱材(グラスウール系50mm)、ペアガラス、網戸付き |
| 装 備 | トイレとして利用できる個室 各部照明 |




















