カレント1100(中古車)
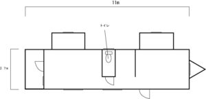
車体幅:2.7m
躯体長:1100cm
画像の室内クロス・クッションフロア・外壁材・エントランスデッキ・デッキ手すり(アルミ製)は張替、交換済み。
・フロアプラン

| 仕様 | |
|---|---|
| 外 観 | ガルバニウム鋼板 |
| 屋 根 | 切り妻・ガルバニウム鋼板 |
| 壁・窓 | グラスウール断熱材100mm・シングルガラス |
| 装 備 | トイレ(ウォシュレット付)・各部照明・各コンセント・チップアウトX2・クッションフロア |




















